~
/
creations
/
timeless films
about
now
Search
semantic not available yet
Full-text
Semantic
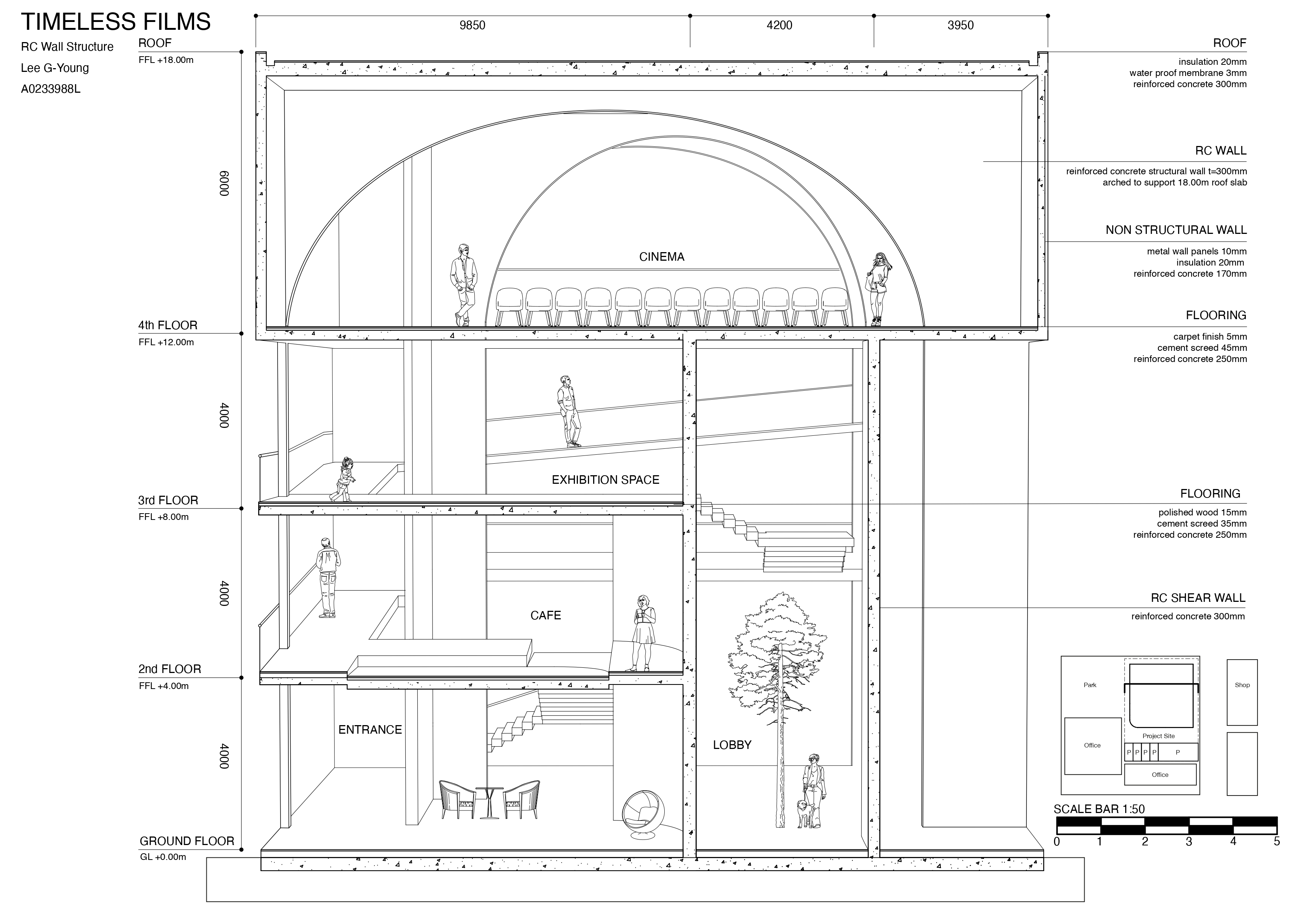
timeless films
a study of transitional space in a cinema
published
16 Sept 2022
modified
16 Sept 2022
duration
0 min read (0 words)
source
llms.txt
a-z
sauter •
j/k
naviguer •
↵
ouvrir •
esc
fermer
you might like the following
values and goals i live by
Kyoto
theartofdigitalsketching
library
your 9-5 is not holding you back, your mindset about it is
learning is helped by friction
nexmeet
micros
the mind cafe mega store
⌘ '
keyboard shortcuts
↑↓
to navigate
↵
to open
⟶
to select
⌘ ⌥ ↵
to open in panel
esc
to dismiss